時間:2017/5/6 10:31:15 關鍵詞:剩余電流式電氣火災監控探測器

1、產品特點
DH-A-FT/N剩余電流式電氣火災監控探測器是一種獨立式的智能型探測器,自成一個小系統,具有儲存功能及較強顯示操作功能。能通過內置電路及軟件對下級終端剩余電流傳感器傳遞過來的信號進行智能分析處理,由此可判斷出下級終端每一只傳感器的狀態(即故障狀態、火災報警狀態、正常工作狀態),完成監控、報警、脫扣,并將信息進行儲存。
DH-A-FT/N剩余電流式電氣火災監控探測器具有傳感器的故障診斷、報警精度高、可靠性強(能有效防止誤報、漏報)、小型化、多功能、簡單實用、安裝方便等特點。
2、適用范圍
適用在電氣火災發生機率大的工廠、大型庫房、辦公室、商業建筑、賓館、住宅及娛樂場所等線路復雜的場所中。
二、產品主要功能
1、通信功能
具備POWER-BUS總線接口,對本產品的工作狀態實現上位機遠程監測、遠程傳輸。通信線纜為ZR-RVS2*1.0雙絞線。
2、故障報警
當探測器檢測到傳感器的傳輸線或其自身發生故障時,故障指示燈點亮,并發出故障報警聲音,當故障排除后,故障報警自動解除。
3、火災報警
當探測器采樣到的實時值大于等于漏電報警設定值時,探測器發出報警信號,點亮報警指示燈,發出報警聲音,等待職守人員處理;如無人及時處理,探測器就會迅速動作于脫扣,并報警聲音繼續響,直至有關人員進行處理。
4、報警儲存功能
當發生事件時,對該事件進行儲存,便于以后查詢。
5、自檢功能
自檢是指探測器可以對本機進行功能檢查,即檢查面板上所有的指示燈、顯示器的工作狀態和音響器件。
6、設定功能
??漏電報警值的設置
可通過面板上的“設置”按鍵來設剩余電流傳感器的漏電報警值,設定范圍為100mA~1000mA之間隨意設置。出廠默認為1000mA。
??地址的設置
探測器可以通過面板上的“設置”按鍵來設置探測器的地址。
??時間設置
探測器可以通過面板上的“設置”按鍵來設置探測器的時間。
7、消音功能
在發生報警或故障時,探測器會發出相應的警報聲,按“消音”鍵后,可以停止探測器發出警報聲,同時消音指示燈亮;如有新的報警或故障發生時探測器將再次發出警報聲。
8、復位功能
按下復位鍵,可以復位探測器使其達到初始狀態。
注意:探測器執行電氣火災監控設備的復位命令,也可以實現復位功能。
9、繼電器動作輸出功能
當探測器發出漏電報警信號后,繼電器自動動作輸出,可以作為脫扣功能。
三、主要技術指標
l?本產品符合標準:
GB 14287.2-2014《電氣火災監控系統 第2部分:剩余電流式電氣火災監控探測器》
l 工作電源:AC220V/50Hz
l 探頭容量:1~8只剩余電流傳感器
l 工作環境:溫度 -10℃~+40℃ ?濕度:≤90% ???海拔高度:≤2000m
l 儲存環境溫度:-10℃~+65℃
l 繼電器觸點容量:AC220V/1A,DC24V/1A
l 儲存功能容量:1000條
l 功耗:5W
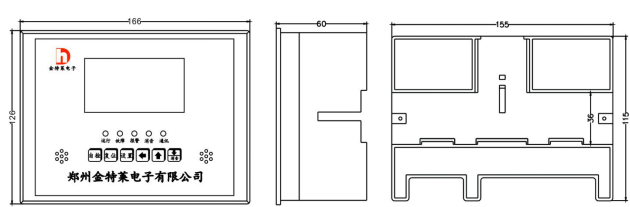
l 外形尺寸:166*126*60mm
l 安裝方式: 155*115mm嵌入式安裝或者35mm導軌式安裝
1、操作面板介紹
操作面板由液晶、5個指示燈、6個按鍵和2個蜂鳴器組成。
2、指示燈的介紹
|
指示燈 |
顏色 |
說明 |
|
運行 |
綠色 |
探測器正常工作時,運行指示燈閃爍點亮 |
|
故障 |
黃色 |
探測器發生故障時,故障指示燈點亮 |
|
報警 |
紅色 |
探測器監測到火災報警時,報警指示燈點亮 |
|
消音 |
綠色 |
探測器處于消音狀態時,消音指示燈點亮 |
|
通訊 |
綠色 |
探測器與電氣火災監控設備正常通信時,通信指示燈點亮 |
3、按鍵的介紹
??自檢:檢測本機各功能是否存在異常(液晶上顯示是否完全,指示燈、蜂鳴器是否故障)。
? 復位:使探測器恢復到正常監視狀態;
? 設置:在正常運行的界面下,按動此鍵可以對探測器的參數進行設置 。
?
移位鍵:當在設置界面上按下此鍵可實現移位功能。
?
方向鍵:加號鍵
?
消音/ 方向鍵:當有報警時,按下消音鍵可實現消音功能;減號鍵。
4、操作說明
(1)、自檢和正常運行
按“自檢”鍵,探測器進入自檢狀態,對液晶屏、指示燈和揚聲器進行自檢。
探測器上的所有指示燈全部點亮,同時相繼發出故障聲和報警聲。并對液晶屏進行全顯示和全空檢測。
正常運行:探測器在正常運行時,探測器顯示漏電界面。

(2)、設置
通用:在進行數值輸入時,在顯示界面上按下“設置”鍵,數值進行閃爍時,配合
、
和
鍵進行數值的輸入。
1)、輸入密碼界面
按“設置”按鍵,進入密碼輸入界面,輸入密碼,進入設置界面。原始密碼為“0000”。
2)、地址設置界面
按“設置”按鍵并輸入密碼后,進入地址設置界面,在此界面設置探測器所在的物理地址,如下圖:此圖顯示的探測器的地址是“0001”。
3)、漏電設置界面
按下“設置”按鍵并輸入密碼后,配合
按鍵進入漏電設置界面,在漏電設置界面可以設置探測器的漏電值,漏電報警值可以在100mA?1000mA之間隨意設定。
4)、時間的設置
按下“設置”按鍵并輸入密碼后,配合
按鍵進入時間設置的界面,在此界面可以設置探測器的日期與時間。
(3)、報警界面
當探測器發生漏電報警時,出現如下圖所示的報警界面。
(4)、報警查詢界面
當探測器發生報警時,探測器會記錄報警時狀態,方便以后查看。
按下按
鍵進入查詢界面,按
進入報警查詢界面,如下圖:漏電報警界面顯示的是探測器在2016年01月09日17:00時1路漏電報警值為1000mA。

(5)、故障查詢界面
按下
按鍵進入查詢界面,按
進入故障查詢界面,如下圖:剩余電流傳感器故障界面顯示的是探測器在2016年01月09日17:10第1路發生剩余電流傳感器故障界面。

1、DH-A-FT/N剩余電流式電氣火災監控探測器的安裝尺寸

主視圖 左視圖 底視圖
2、開機檢查
DH-A-FT/N剩余電流式電氣火災監控探測器在安裝之前,需要進行外觀檢查和開機實驗,
方法如下:將DH-A-FT/N剩余電流式電氣火災監控探測器從包裝箱內取出,進行外觀的檢查,看一下里面的緊固元件是否有松動現象,各種插件的連接是否可靠。
開機實驗項目:用剩余電流傳感器連接到DH-A-FT/N剩余電流式電氣火災監控探測器ST端子上進行火災報警、消音、自檢、復位等實驗,檢驗合格后,方可安裝和接線。
3、調試
現場開通調試步驟如下:
(1)、探測器通電開機,開機時探測器對顯示面板上的指示燈、液晶、蜂鳴器做一遍自檢,在進入正常運行前,所有的指示燈全部點亮,液晶全部顯示,蜂鳴器鳴叫。
(2)、將探測器的各個回路的火災報警值分別設置成大于相應剩余電流傳感器或者測溫傳感器的報警設定值。
(3)、傳感器實際采集到的剩余電流值或者溫度值,等待剩余電流傳感器或者測溫傳探頭穩定,探測器進行信號采集后,即大概在100秒內,看各個回路是否有處于故障狀態,若有,則仔細檢查接線端子看是否良好接觸,檢查剩余電流傳感器是否短路、斷路,;看各個回路是否有處于火災報警狀態,若有,則說明探測器工作異常,應該仔細檢查連接的線路。
(4)、將回路中的任意一個回路的剩余電流傳感器拆下,看該回路是否在100秒之內,發出故障報警信號,若是的話,說明該探測器工作正常。
(5)、讓回路中的任意一個回路處于火災報警的狀態,若該回路在30秒之內,發出火災報警信號,而另外幾回路一直沒有發出火災報警信號,則說明探測器工作正常。
(6)、在故障或火災報警時,有一個回路發出報警信號時,按下消音鍵看報警音是否消除,消音指示燈是否點亮,若消除,且消音指示燈一直點亮,則說明消音鍵和消音指示燈都沒有問題,若此時又有另一個回路發出報警信號,蜂鳴器應該繼續鳴叫,再按消音鍵音響應該又可消除,而消音指示燈一直亮著。
(7)、在故障或火災報警時,若按下復位鍵時,所有指示燈(運行指示燈除外)都熄滅,繼電器復位,音響消除,則說明復位鍵沒有問題。
(8)、全部調試完畢,系統驗收后方能正常投入運行。
六、傳感器的尺寸和安裝
1、剩余電流傳感器JXST的外形尺寸
|
規格 型號 |
精度 等級 |
尺寸(mm) |
|||||||
|
A |
B |
C |
D |
E |
F |
G |
Φ |
||
|
JX225 |
0.5 |
202 |
65 |
22 |
188 |
180 |
140 |
25 |
5 |
|
JX630 |
0.5 |
292 |
72 |
22 |
280 |
272 |
232 |
32 |
5 |
2、剩余電流傳感器YXST的外形尺寸


備注:長×寬×高=A×B×C
主要技術參數:
? 剩余電流測量范圍:100~1000mA
? 過線額定頻率:50Hz
? 使用環境:溫度-10℃~+50℃,相對濕度≤90%,不結露,海拔<2000米
3、安裝接線示意圖
|
接線方式 |
說明 |
|
|
說明:此圖用于TN-S三相配電系統剩余電流的檢測,A、B、C、N四線同時穿過剩余電流傳感器。
|
|
|
說明:此圖用于單相配電系統剩余電流的檢測,L、N同時穿過剩余電流傳感器。
|
4、安裝注意事項
剩余電流傳感器的安裝應注意以下問題:
(1)、安裝時,必須嚴格區分N線和PE線,三相四線制的N線應通過漏電火災監控系統的剩余電流互感器。通過漏電火災監控系統的剩余電流傳感器的N線,不得作為PE線,不得重復接地或接設備外露可接近導體。PE線不得接入剩余電流保護裝置。
(2)、剩余電流傳感器在配電柜(箱)內安裝,要特別注意施工安全,要在斷電情況下施工,并注意強弱電分開走線,單獨敷設剩余電流傳感器信號線,并應使用帶屏蔽的多芯控制線。特別注意防止接錯線或搭線,造成強電串入火災監控器中燒毀火災監控器或聯網的多個火災監控器。
七、維修和更換
當探測器或傳感器出現故障后要及時修理或更換,不允許長時間停止運行,如遇到值班人員無法處理的故障時,請及時通知生產廠家或當地維修部門。
下面幾項可由值班人員或用戶的專門管理人員進行維修:
1、檢查交流電源插座的保險絲,并予以更換;
2、檢查模塊內的各接插件的連接是否良好;
3、檢查系統設定參數是否被改動;
如有條件可更換部件,換下的部件應及時送廠家修理。